Product Functies Prijzen Meer
Hoofdstuk 1 Inleidende Regels
Artikel 1 Begrippen
Artikel 2 Wijze Van Meten
Hoofdstuk 2 Bestemmingsregels
Artikel 3 Agrarisch Met Waarden - Landschaps- En Cultuurhistorische Waarden
Artikel 4 Bos
Artikel 5 Tuin
Artikel 6 Wonen
Artikel 7 Waarde - Archeologie
Hoofdstuk 3 Algemene Regels
Artikel 8 Anti-dubbeltelregel
Artikel 9 Algemene Gebruiksregels
Artikel 10 Algemene Afwijkingsregels
Artikel 11 Algemene Wijzigingsregels
Artikel 12 Overige Regels
Hoofdstuk 4 Overgangs- En Slotregels
Artikel 13 Overgangsrecht
Artikel 14 Slotregel
Hoofdstuk 1 Inleiding
1.1 Aanleiding
1.2 Ligging Van Het Plangebied
1.3 Vigerend Bestemmingsplan
Hoofdstuk 2 Projectprofiel
2.1 Inleiding
2.2 Gebiedsbeschrijving
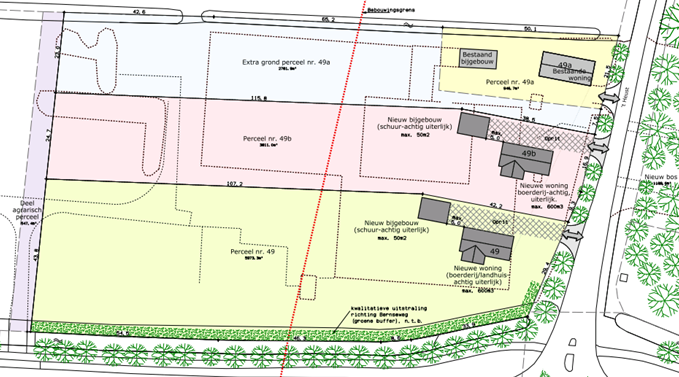
2.3 Projectbeschrijving
Hoofdstuk 3 Beleidskader
3.1 Inleiding
3.2 Rijksbeleid
3.3 Provinciaal Beleid
3.4 Regionaal En Gemeentelijk Woningbouwbeleid
3.5 Regionale En Gemeentelijke Vab-regeling
3.6 Gemeentelijk Beleid
Hoofdstuk 4 Sectorale Aspecten
4.1 Algemeen
4.2 Bodemkwaliteit
4.3 Geluid
4.4 Luchtkwaliteit
4.5 Externe Veiligheid
4.6 Bedrijven En Milieuzonering
4.7 Geurhinder
4.8 Kabels En Leidingen
4.9 Flora En Fauna
4.10 Archeologie En Cultuurhistorie
4.11 Vormvrije M.e.r.-beoordeling
Hoofdstuk 5 Waterparagraaf
5.1 Inleiding
5.2 Watertoets
5.3 Waterhuishoudkundige Situatie
5.4 Invloed Van Het Planvoornemen
Hoofdstuk 6 Juridische Opzet
6.1 Wettelijk Kader
6.2 Planonderdelen
6.3 Inhoud Algemeen
6.4 Regels
6.5 Bestemmingen
Hoofdstuk 7 Uitvoerbaarheid
7.1 Economische Uitvoerbaarheid
7.2 Planschade
7.3 Maatschappelijke Uitvoerbaarheid
7.4 Conclusie
Hoofdstuk 8 Procedure
8.1 De Te Volgen Procedure
8.2 Zienswijzen En Vaststelling
Bijlage 1 Staat Van Bedrijfsactiviteiten
Bijlage 1 Beeldkwaliteitsplan
Bijlage 2 Verkennend Bodemonderzoek
Bijlage 3 Akoestisch Onderzoek Wegverkeerslawaai
Bijlage 4 Quickscan Flora En Fauna
Bijlage 5 Archeologisch Onderzoek
Bijlage 6 Advies Odr Met Betrekking Tot Archeologie
Bijlage 7 Nader Onderzoek Aspest In Puin

Buitengebied herziening 2015, Heust 49

Bestemmingsplan - gemeente Maasdriel

Vastgesteld op 14-09-2017 - geheel onherroepelijk in werking