Hoofdstuk 1 Inleidende Regels
Artikel 1 Begrippen
Artikel 2 Wijze Van Meten
Hoofdstuk 2 Bestemmingsregels
Artikel 3 Verkeer - Verblijf
Artikel 4 Wonen
Artikel 5 Wonen - Lint
Hoofdstuk 3 Algemene Regels
Artikel 6 Anti-dubbeltelregel
Artikel 7 Algemene Bouwregels
Artikel 8 Algemene Gebruiksregels
Artikel 9 Algemene Afwijkingsregels
Artikel 10 Algemene Wijzigingsregels
Artikel 11 Algemene Procedureregels
Artikel 12 Overige Regels
Hoofdstuk 4 Overgangs- En Slotregels
Artikel 13 Overgangsrecht
Artikel 14 Slotregel
Hoofdstuk 1 Plan En Plangebied
1.1 Aanleiding Tot Planontwikkeling
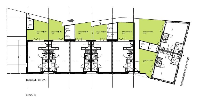
1.2 Het Plangebied
1.3 Voorgaande Plannen
1.4 Ruimtelijke En Functionele Structuur
Hoofdstuk 2 Ruimtelijk Beleidskader
2.1 Rijk
2.2 Provincie
2.3 Gemeente
Hoofdstuk 3 Thematische Beleidskaders
3.1 Inleiding
3.2 Stedenbouwkundige Aspecten En Welstand
3.3 Archeologie, Cultuurhistorie En Monumentenzorg
3.4 Volkshuisvesting
3.5 Verkeer En Parkeren
Hoofdstuk 4 Milieuaspecten
4.1 Inleiding
4.2 Milieueffectrapportage
4.3 Milieuhinder Bedrijven
4.4 Externe Veiligheid
4.5 Vuurwerk
4.6 Geluid
4.7 Lucht
4.8 Geur
4.9 Bodem
4.10 Natuur En Ecologie
Hoofdstuk 5 Wateraspecten
5.1 Bestaand Watersysteem
5.2 Beleidskader
5.3 Duurzaam Watersysteem
5.4 Watertoets
Hoofdstuk 6 Opzet Planregels
6.1 Inleiding
6.2 Standaard Plansystematiek
6.3 Bestemmingen En Aanduidingen
6.4 Bouw- En Gebruiksregels
Hoofdstuk 7 Uitvoerbaarheid
Hoofdstuk 8 Omgevingsdialoog En Vooroverleg
8.1 Kennisgeving Ex Artikel 1.3.1 Bro
8.2 Overleg Ex Artikel 3.1.1 Bro
8.3 Omgevingsdialoog
8.4 Zienswijzen
Bijlage 1 Risico-inventarisatie En Verantwoording Groepsrisico
Bijlage 2 Akoestisch Onderzoek Wegverkeerslawaai Tongerlose Hoefstraat 83
Bijlage 3 Advies Ev Brandweer Mwb
Bijlage 4 Parkeeronderzoek Tongerlose Hoefstraat 83 E.o.
Bijlage 5 Verslag Omgevingsdialoog
Bijlage 6 Zonnestudie Tongerlose Hoefstraat

Oude Stad Noordwest 2016; 4e herziening (Tongerlose Hoefstraat 83)

Bestemmingsplan - gemeente Tilburg

Vastgesteld op 14-11-2022 - geheel onherroepelijk in werking

Bestanden

Bijlage Bij Regels